产(chǎn)品(pǐn)列表
格栅除(chú)污机系列(liè)
ZHG型反捞式格栅除污机

概述
反(fǎn)捞式格栅除污机为粗格栅,又称雨水格栅,或者回(huí)转耙式格栅,是一种(zhǒng)用于清除水体重较大固体悬浮物的大型(xíng)粗格栅设(shè)备,本装置可以连续清除液体中的固体悬浮物,设计合理,结构简单(dān),运转安全可靠,自(zì)动化程度高,可广(guǎng)泛运用于城市污水处理,自来水(shuǐ)厂取水口,雨水泵站,发电厂冷却水取水口等大流量的水处理场所(suǒ)。设备(bèi)结构参照(zhào)了回转式格栅除污机的优(yōu)点,采用与众不同的工作原理,即(jí)耙齿链在栅前后作回转运动,当耙齿运转到栅条(tiáo)的迎水面时,即插入栅条缝隙中由下往上作(zuò)清捞动作,耙(pá)齿链采用封(fēng)闭式,不(bú)让杂物(wù)侵入,使设备运转平稳。在设备安装(zhuāng)时采用整机吊(diào)装,只需在集水井两侧的地坪上预埋两块钢板,土建(jiàn)简单(dān),安(ān)装维修方便。
工(gōng)作原理
反捞式(shì)格栅除污机(jī)由机架、驱(qū)动装置(zhì)、传动导轮、耙链组合及耙齿、挡渣栅条。挡渣板等组(zǔ)成。在电机驱(qū)动下,牵引(yǐn)链条在迎水面由下往上作回转运动。当牵引链上的耙齿轴(zhóu)运转到栅条的迎水面时。耙齿即插(chā)入栅条缝隙(xì)中由(yóu)下往上作清捞(lāo)动作,将栅条上所截留的杂物刮落耙中,清除效率高且彻底。当齿耙运转到机器上,杂物靠自重自行脱落至容器或输送机上,把杂物送(sòng)走。
反(fǎn)捞式格栅除污机为粗格栅,又称雨水格栅,或者回(huí)转耙式格栅,是一种(zhǒng)用于清除水体重较大固体悬浮物的大型(xíng)粗格栅设(shè)备,本装置可以连续清除液体中的固体悬浮物,设计合理,结构简单(dān),运转安全可靠,自(zì)动化程度高,可广(guǎng)泛运用于城市污水处理,自来水(shuǐ)厂取水口,雨水泵站,发电厂冷却水取水口等大流量的水处理场所(suǒ)。设备(bèi)结构参照(zhào)了回转式格栅除污机的优(yōu)点,采用与众不同的工作原理,即(jí)耙齿链在栅前后作回转运动,当耙齿运转到栅条(tiáo)的迎水面时,即插入栅条缝隙中由下往上作(zuò)清捞动作,耙(pá)齿链采用封(fēng)闭式,不(bú)让杂物(wù)侵入,使设备运转平稳。在设备安装(zhuāng)时采用整机吊(diào)装,只需在集水井两侧的地坪上预埋两块钢板,土建(jiàn)简单(dān),安(ān)装维修方便。
工(gōng)作原理
反捞式(shì)格栅除污机(jī)由机架、驱(qū)动装置(zhì)、传动导轮、耙链组合及耙齿、挡渣栅条。挡渣板等组(zǔ)成。在电机驱(qū)动下,牵引(yǐn)链条在迎水面由下往上作回转运动。当牵引链上的耙齿轴(zhóu)运转到栅条的迎水面时。耙齿即插(chā)入栅条缝隙(xì)中由(yóu)下往上作清捞(lāo)动作,将栅条上所截留的杂物刮落耙中,清除效率高且彻底。当齿耙运转到机器上,杂物靠自重自行脱落至容器或输送机上,把杂物送(sòng)走。

特点与应用
在运行过程中,杂物可能进入牵引(yǐn)链中,将链条卡死,故设(shè)计了封闭式牵引链(liàn)。其(qí)主要有链板、链销和滚轮组成,运行时由机架(jià)上的导轨作(zuò)导向,滚轮在导轨上作滚动运动,阻(zǔ)力小且运转平稳。
水下回(huí)转轮定位采(cǎi)用不锈钢材质,配以耐磨铜套自润滑轴(zhóu)承,免去水下部件(jiàn)的日常维护。
挡渣部分采用固定栅条形式(shì),有较强的耐(nài)冲击(jī)力,能承受较(jiào)大的水位差。
基于以上优点(diǎn),反捞式格栅应用于较宽的河道拦污、雨水泵站、河道取(qǔ)水口、污水厂粗格栅等大流量的水(shuǐ)处理场所。
订货参数(shù)
1、渠道(设备)宽度 2、渠道深度 3、出料高度 4、耙齿间(jiān)隙 5、安装角度 6、机架材质 7、耙齿材质 8、其余要求
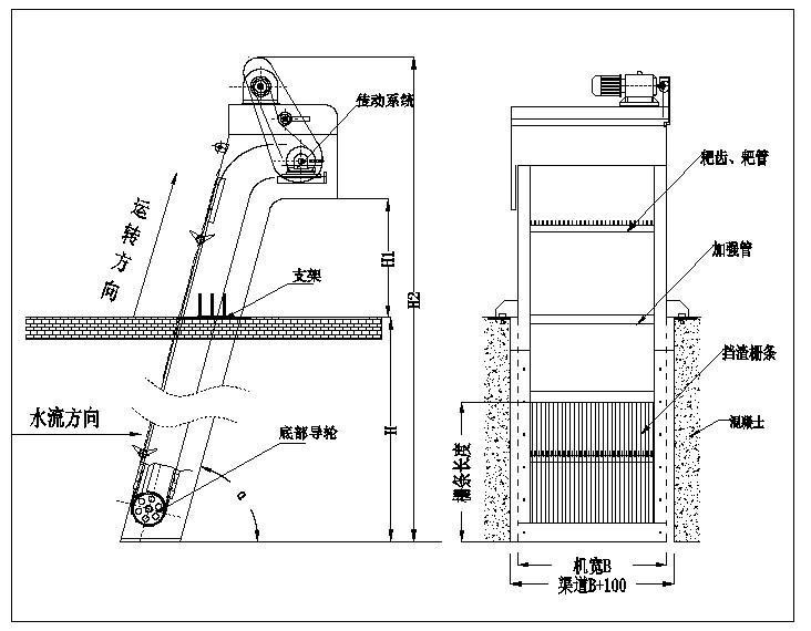
外形(xíng)示意图
在运行过程中,杂物可能进入牵引(yǐn)链中,将链条卡死,故设(shè)计了封闭式牵引链(liàn)。其(qí)主要有链板、链销和滚轮组成,运行时由机架(jià)上的导轨作(zuò)导向,滚轮在导轨上作滚动运动,阻(zǔ)力小且运转平稳。
水下回(huí)转轮定位采(cǎi)用不锈钢材质,配以耐磨铜套自润滑轴(zhóu)承,免去水下部件(jiàn)的日常维护。
挡渣部分采用固定栅条形式(shì),有较强的耐(nài)冲击(jī)力,能承受较(jiào)大的水位差。
基于以上优点(diǎn),反捞式格栅应用于较宽的河道拦污、雨水泵站、河道取(qǔ)水口、污水厂粗格栅等大流量的水(shuǐ)处理场所。
订货参数(shù)
1、渠道(设备)宽度 2、渠道深度 3、出料高度 4、耙齿间(jiān)隙 5、安装角度 6、机架材质 7、耙齿材质 8、其余要求
外形(xíng)示意图

B=机宽; H=渠深; H1=出渣高度; H2=H+H1+2000; α=安装角度。
过水流量计算
反捞式格栅每(měi)小(xiǎo)时过水流量:Q=K*(B-160)*h*V*3600,其(qí)中:
Q=过水流量(m³/h);K=与格栅间隙有关的流量系数(见(jiàn)系数表);B=格栅机宽(m);h=栅前水深(m),一般按1m或低(dī)于(yú)渠深0.3m以上(shàng);V=过流速度,一般取(qǔ)0.6~1m/s。
主要技术参数
注:可以采用插值法得出其他间(jiān)隙对应K值(zhí)的近(jìn)似值。
过水流量计算
反捞式格栅每(měi)小(xiǎo)时过水流量:Q=K*(B-160)*h*V*3600,其(qí)中:
Q=过水流量(m³/h);K=与格栅间隙有关的流量系数(见(jiàn)系数表);B=格栅机宽(m);h=栅前水深(m),一般按1m或低(dī)于(yú)渠深0.3m以上(shàng);V=过流速度,一般取(qǔ)0.6~1m/s。
主要技术参数
过流系数K
| 格栅间隙(mm) | 15 | 20 | 30 | 50 | 80 | 100 | >100 |
| 流量系数(shù)K | 0.42 | 0.5 | 0.6 | 0.71 | 0.8 | 0.83 | 0.85 |
ZHG反捞式格栅除污机(jī)主要技术参数及外(wài)形尺寸列表
|
型号 (ZHG) |
设备宽度 (mm) |
沟宽(kuān) (mm) |
电机功率 (kw) | 过水流量(m³/h) | |||||
| 格(gé)栅(shān)间隙 (mm) | |||||||||
| 15 | 20 | 30 | 50 | 80 | 100 | ||||
| 800 | 800 | 900 | 1.1 | 581 | 691 | 829 | 982 | 1106 | 1147 |
| 1000 | 1000 | 1100 | 762 | 907 | 1089 | 1288 | 1452 | 1506 | |
| 1200 | 1200 | 1300 | 1.1~1.5 | 943 | 1123 | 1348 | 1595 | 1797 | 1865 |
| 1400 | 1400 | 1500 | 1125 | 1339 | 1607 | 1902 | 2143 | 2223 | |
| 1600 | 1600 | 1700 | 1306 | 1555 | 1866 | 2208 | 2488 | 2582 | |
| 1800 | 1800 | 1900 | 1488 | 1771 | 2125 | 2515 | 2834 | 2940 | |
| 2000 | 2000 | 2100 | 1669 | 1987 | 2385 | 2822 | 3180 | 3299 | |
| 2200 | 2200 | 2300 | 1851 | 2203 | 2644 | 3129 | 3525 | 3657 | |
| 2400 | 2400 | 2500 | 2032 | 2419 | 2903 | 3435 | 3871 | 4016 | |
| 2600 | 2600 | 2700 | 1.5~2.2 | 2214 | 2635 | 3162 | 3742 | 4216 | 4374 |
| 2800 | 2800 | 2900 | 2395 | 2851 | 3421 | 4049 | 4562 | 4733 | |
| 3000 | 3000 | 3100 | 2576 | 3067 | 3681 | 4355 | 4908 | 5092 | |
上(shàng)一篇:WBF转刷网蓖式格栅除污(wū)机
下一篇:网板式阶梯格栅除污机



苏公网安(ān)备32028202232131号