产品列表
WBF转刷(shuā)网蓖式格栅除(chú)污机

概述
WBF转刷网蓖式格栅(shān)除污机适用于城市污(wū)水处理、自来水行业(yè)、电厂进水口,同时也可作为纺织、食品加工(gōng)、造纸、皮革等行业生产工(gōng)艺中不可缺少的专业设备,是目前技术稳定(dìng)的固(gù)液分离设备之一。
工作原理
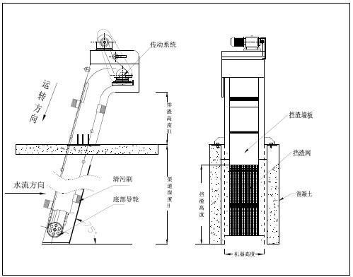
WBF转刷网蓖(bì)式格(gé)栅除污机(jī)主要由驱动装置、机(jī)架、主轴、栅(shān)网、托渣板、固定板刷、回转刷及牵引链组(zǔ)成。在电机驱(qū)动下,通过(guò)减速机减速后,带动链轮与(yǔ)链条运动,固定在回(huí)转链条上板刷(shuā)沿栅网网面由下而上(shàng)移动,清扫网面并带走污(wū)物,污物运送至顶部时,大部分(fèn)靠重力(lì)自行(háng)落至排渣(zhā)都,少量附(fù)着在固定板刷上的污物被转动的回转刷清除(chú)掉,完成除污过程(chéng),液体则通过栅网的间隙流(liú)过,整个工作过程连续进行。
特点与应用
转刷网蓖式格栅(shān)除污机能对水中的果皮、杂草(cǎo)、悬浮物等容易缠绕(rào)难以卸(xiè)料的(de)杂质(zhì)进行(háng)可靠的拦截和(hé)清除,有(yǒu)效应用于果汁制品厂、果酱制品厂、农作物制(zhì)品厂等。相对于耙(pá)齿形式的细格栅,本产品优点:传动部件相对较少(shǎo),工作可靠;采用便拆式结构,维护简(jiǎn)单;设备有自洁机构,不易堵塞,不易被(bèi)垃圾缠绕、容易(yì)卸(xiè)料。
外形示意图
过水流量计算(suàn)
过水流量计算(suàn)——
格栅每小时过水流量:
Q=K*(B-160)*h*V*3600
其中:
Q=过水流量(m³/h);
K=与格栅间隙有关的流量系数(见系数表);
B=格栅机宽(m);
h=栅(shān)前水深(m),一般按1m或低(dī)于渠深0.3m以上;
V=过流速度,一般(bān)取0.6~1m/s。
主要技(jì)术参数
注:可以采用插值法得出其他间隙(xì)对(duì)应K值的近似(sì)值。
WBF转刷网蓖式格栅(shān)除污机适用于城市污(wū)水处理、自来水行业(yè)、电厂进水口,同时也可作为纺织、食品加工(gōng)、造纸、皮革等行业生产工(gōng)艺中不可缺少的专业设备,是目前技术稳定(dìng)的固(gù)液分离设备之一。
工作原理
WBF转刷网蓖(bì)式格(gé)栅除污机(jī)主要由驱动装置、机(jī)架、主轴、栅(shān)网、托渣板、固定板刷、回转刷及牵引链组(zǔ)成。在电机驱(qū)动下,通过(guò)减速机减速后,带动链轮与(yǔ)链条运动,固定在回(huí)转链条上板刷(shuā)沿栅网网面由下而上(shàng)移动,清扫网面并带走污(wū)物,污物运送至顶部时,大部分(fèn)靠重力(lì)自行(háng)落至排渣(zhā)都,少量附(fù)着在固定板刷上的污物被转动的回转刷清除(chú)掉,完成除污过程(chéng),液体则通过栅网的间隙流(liú)过,整个工作过程连续进行。
特点与应用
转刷网蓖式格栅(shān)除污机能对水中的果皮、杂草(cǎo)、悬浮物等容易缠绕(rào)难以卸(xiè)料的(de)杂质(zhì)进行(háng)可靠的拦截和(hé)清除,有(yǒu)效应用于果汁制品厂、果酱制品厂、农作物制(zhì)品厂等。相对于耙(pá)齿形式的细格栅,本产品优点:传动部件相对较少(shǎo),工作可靠;采用便拆式结构,维护简(jiǎn)单;设备有自洁机构,不易堵塞,不易被(bèi)垃圾缠绕、容易(yì)卸(xiè)料。
外形示意图

过水流量计算(suàn)——
格栅每小时过水流量:
Q=K*(B-160)*h*V*3600
其中:
Q=过水流量(m³/h);
K=与格栅间隙有关的流量系数(见系数表);
B=格栅机宽(m);
h=栅(shān)前水深(m),一般按1m或低(dī)于渠深0.3m以上;
V=过流速度,一般(bān)取0.6~1m/s。
主要技(jì)术参数
过流系数K
| 格栅(shān)间(jiān)隙(mm) | 0.5 | 1 | 2 | 3 | 5 |
| 流量系数K | 0.08 | 0.1 | 0.12 | 0.27 | 0.36 |
上一篇:在线稀释装置
下一篇:ZHG型反捞式格栅除污机(jī)



苏公网安备32028202232131号